制振装置 evoltz(エヴォルツ)


特許技術により小さな揺れから効果を発揮!揺れ幅を大きく低減!
自動車のショックアブソーバー(※)の技術をベースに、木造住宅用制振装置を開発。
「制振装置evoltz(エヴォルツ)」は世界有数の自動車メーカーがトップモデルとして選択するビルシュタイン社に製造を委託し、世界レベルの高性能、高品質を実現しました。
地震の際に生じる家の傷みをやわらげ、繰り返しの揺れもしっかりと吸収し、住宅の資産価値や人命、家財を守ります。
さらに繰り返しの揺れ(本震・余震)でも性能は変わりません。
※路面からの衝撃による振動を吸収するパーツ
ヤマト住建では、「木造在来軸組工法」と「金物工法」・「パネル工法」の組み合わせによる高い耐震構造に、
「制振装置 evoltz」を採用することで、地震に強い家づくりを実現しています。
実際に「制振装置 evoltz(エヴォルツ)」を採用している
お客様の声をぜひご覧ください!
地震対策工法の違い
3つの地震対策工法
-
建物の剛性を高め構造体そのものの強度で地震の揺れに耐える工法。 繰り返しの揺れで強度が減る恐れあり。
-
建物の骨組みに組み込まれた制振装置が地震の揺れを吸収軽減する工法。価格が安く効果を発揮。あらゆる木造工法に対応できる。
-
建物と基礎の間に免震装置を入れて建物に揺れを伝えない工法。敷地や建物に設置条件があり多額の費用がかかるのが難点。
東日本大震災時、共震により激しく振られたことにより東京タワーが変形するという被害がニュース等でも報じられました。
この被害で、展望台に居合わせた観客は階段で下りて避難、けが人は出なかったものの同タワーの営業は中止になりました。
一方、油圧式ダンパーを採用している東京スカイツリーは、建設中であったにもかかわらず、地震の影響は受けなかったのです。
evoltz(エヴォルツ)B5の特徴



高い耐震性を維持するために
耐震設計+制振性能をスペックイン
耐震構造は筋交いや板材などによって柱や梁、床、屋根などを
がっちり固めるもの。建物の耐震性は「耐震等級」で表され、
最高等級3は建築基準法(等級1)の1.5倍の耐震性能です。
しかし固く強い耐震構造でも、筋交いや板材の釘が緩んだり、
家具転倒のおそれがあります。だからこそ「evoltz」が必要になるのです。

バイリニア特性とは、
制振装置がエネルギーを吸収する「減衰力」の増大に伴って、
躯体を傷つけることのないように考えた特性。
evoltz B5はこの特性をさらに進化させ
「極バイリニア特性」を実現しました。



evoltzが地震エネルギーを吸収し、
躯体の変形を抑えることで、
構造部材へのダメージを低減します。


evoltzシリーズは、住宅の倒壊だけでなく、損傷も防ぐと
いう事を重視して開発に取り組んできました。
evoltzB5は、L220の特徴を受け継ぎ、更にエネルギー
吸収量がアップ。これこそが住宅に「未来の安心」を
もたらす卓越した技術です。



100万回の作動耐久試験
余震にも有効
100万回の作動耐久試験の実施後も性能はほとんど変わりません。
大地震の発生後に何度も来る余震に対してもしっかりと対応することができます。
それにより、住宅が長寿命化し、「安心」「安全」を実現します。

[温度試験]使用環境温度領域
−20~80℃に耐える
外気温が酷暑や極寒の場合、壁の中もまた
過酷な状況です。しかし、evoltzは例え
そのような中にあってもしっかりと作動し、
変わらず性能が発揮されることを実験済みです。


繰り返された実験と解析により必要本数を算出。
そして、「evoltz」の効果を全棟検証します。

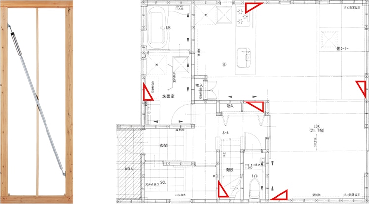
配置設計・計算
品確法の性能表示の考え方に基づいて
配置設計を実施。1棟毎に計算。

シリアルNo.
全ての製品にシリアルナンバーを付与し、どの製品が、いつ、どこに出荷されたかを確実に追跡できる体制を確立しています。


※建物の重量、積雪量によっては本数が変化します。

世界的なパーツメーカーとのコラボレーション

世界有数の自動車メーカーがトップモデルとして選択するBILSTEIN社に製造を委託。
世界レベルの高性能、高品質を実現しました。
BILSTEIN社との画期的なコラボレーションにより、制振性能を飛躍的に向上。
日本も木造住宅に、世界品質の安心を実現します。
-

-
自動車ショックアブソーバーの技術をベースに、木造住宅用制振装置を開発。制振装置evoltz(エヴォルツ)は世界有数の自動車メーカーがトップモデルとして選択するBILSTEIN(ビルシュタイン)社が製造し、世界レベルの高性能、高品質を実現しました。










