”理想の暮らしがここに” 平屋で叶える快適生活
兵庫県
太子町糸井住宅展示場
- 平屋
- 101.02m²
- 3LDK
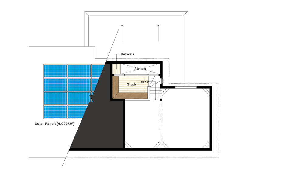
吹き抜けのリビングが生む開放感と、家族が自然と集まるぬくもりの空間。第一種熱交換換気システムにより、四季を通じて快適で清潔な空気環境を実現。太陽光パネルで省エネにも配慮し、落ち着いた書斎スペースで自分時間も充実します。
モデルハウス紹介
兵庫県
太子町糸井住宅展示場
吹き抜けのリビングが生む開放感と、家族が自然と集まるぬくもりの空間。第一種熱交換換気システムにより、四季を通じて快適で清潔な空気環境を実現。太陽光パネルで省エネにも配慮し、落ち着いた書斎スペースで自分時間も充実します。
| 1階 | 101.02m² |
|---|