開放感溢れる、大空間リビングの家
兵庫県
川西住宅展示場
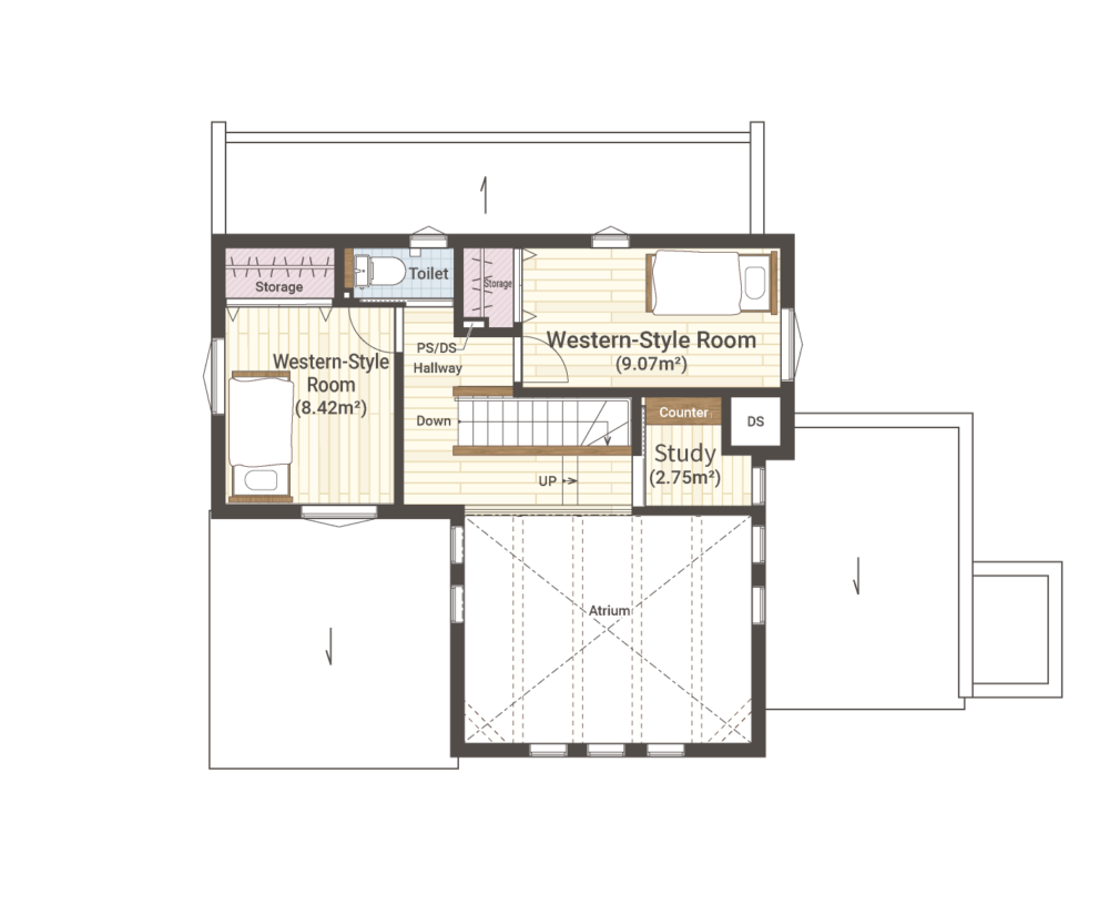
- 2階建て
- 121.10m²
- 3LDK
- 書斎
2色の外壁が映えるモダンなデザインが魅力のモデルハウス。光に満ちた開放的な吹き抜けと、広々とした大空間リビングが贅沢な住まいです。キッチン周りのカウンターや小上がり、2カ所のWICL(ウォークインクローゼット)など、暮らしに便利な工夫が随所に散りばめられ、使い勝手抜群。さらに、約7.50kWの太陽光パネルを搭載しており、家計に優しいエコな生活が可能です。エコエアfineによる一年を通じた快適な空調で、心地よい暮らしをご体感ください。

























